Akeleiweg 15 - 38518 Gifhorn - Tel. 05371-6704118 - Mob. 0151-57703761 - info@hg-massivhaus.de

Grundrissvarianten aus unserem Katalog
für Einfamilien-Wohnhäuser

Wir planen und bauen auch individuell nach Ihren Wünschen und Bedürfnissen. Die folgenden Grundrisse sollen Sie inspirieren, damit Sie ein anspruchsvolles Haus erhalten.

Eine hochwertige Planung ergibt eine angenehme Wohnqualität.

Typ UD 2 Typ UD 2
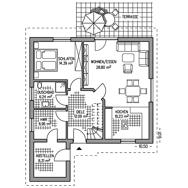
UD 2 Erdgeschoss Grundriss
Erdgeschoss
Wohnfläche: 96,84 m²
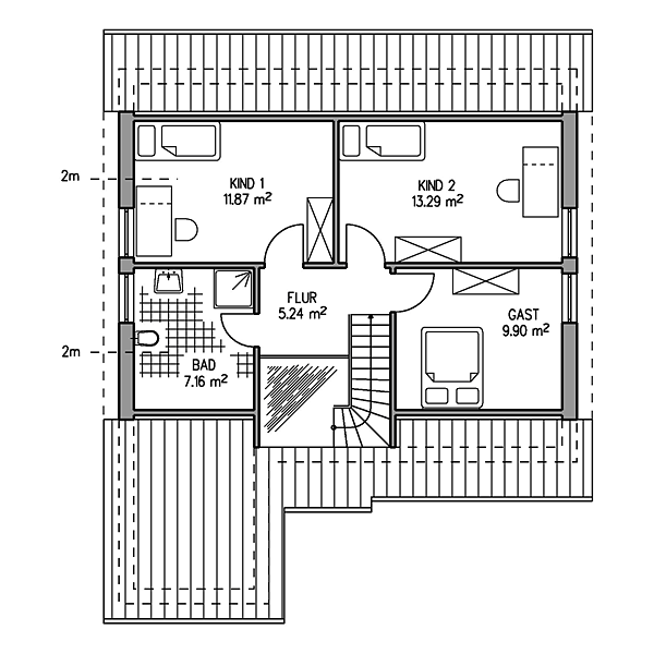
UD 2 Dachgeschoss Grundriss
Dachgeschoss
Wohnfläche: 60,16 m²
Typ UD 4 Typ UD 4
UD4 Erdgeschoss Grundriss
Erdgeschoss
Wohnfläche: 85,99 m²
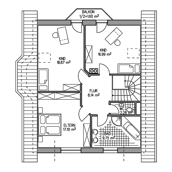
UD4 Dachgeschoss Grundriss
Dachgeschoss
Wohnfläche: 72,49 m²
Typ UD 6 Typ UD 6
UD6 Erdgeschoss Grundriss
Erdgeschoss
Wohnfläche: 97,44 m²
UD6 Dachgeschoss Grundriss
Dachgeschoss
Wohnfläche: 78,57 m²
Typ UD 10 Typ UD 10
UD10 Erdgeschoss Grundriss
Erdgeschoss
Wohnfläche: 84,41 m²
UD10 Dachgeschoss Grundriss
Dachgeschoss
Wohnfläche: 46,04 m²
Typ UD 12 Typ UD 12
UD12 Erdgeschoss Grundriss
Erdgeschoss
Wohnfläche: 97,57 m²
UD12 Dachgeschoss Grundriss
Dachgeschoss
Wohnfläche: 63,55 m²
Typ UD 16
UD16 Erdgeschoss Grundriss
Erdgeschoss
Wohnfläche: 94,33 m²
UD16 Dachgeschoss Grundriss
Dachgeschoss
Wohnfläche: 69,17 m²